Новинка! Каменка эпохи цифровых технологий.
Электрическая каменка Harvia Moderna V60XE Black с пультом управления Xenio CX110 в комплекте для парных от 5 до 8 куб. метров. Harvia Moderna - королева среди электрических каменок. Каменка Moderna быстро и бесшумно прогревает сауну до нужной температуры. электронные управляющие компоненты, запатентованные компанией Harvia, легко позволяют прогреть сауну до самой комфортной для Вас температуры - с точностью до 1 градуса. Отдельный электронный датчик поддерживает постоянную температуру все время, пока Вы паритесь. Нагревательные элементы рассчитаны на интенсивную эксплуатацию.
Для удобства пользования Harvia Cilindro PC110XE оборудована выносным блоком управления, позволяющим дистанционно управлять режимом работы электрической печки и температурой нагрева помещения. Тем не менее пользователю доступен также "классический" способ регулировки объема пара и температуры в сауне - путем выплескивания на камни требуемого количества воды. Наличие выносного блока управления позволит также устанавливать каменку в нижний полок, оборудованный монтажным фланцем, что позволит дополнительно сохранить свободное пространство в парилке.
Harvia Xenio - пульты управления с сенсорной панелью. Панель управления пульта Xenio обеспечивает современный и стильный интерфейс для управления сердцем сауны, будь то традиционная электрокаменка, электрокаменка Combi с испарителем или инфракрасный излучатель. Компактная и тем не менее полноценная сенсорная панель управления может устанавливаться на стене практически любого помещения - сауны (не выше 1 метра, рекомендуется встраивать панель в стену сауны), раздевалки, спальни или даже гостиной. Панель управления показывает Вам, когда в сауне подходящая для парения температура.
Пульт управления Harvia Xenio в комплекте!
Harvia Xenio - это семейство современных пультов управления, которые делают простым управление вашей сауной.
Стильная сенсорная панель управления включает исчерпывающий набор функций: управление временем работы, температурой, освещением и вентиляцией с панели управления.
Панель управления может быть установлена непосредственно на стену либо встроена в нее для придания элегантного вида.
- Диапазон установки температуры 40-110 oC.
- Диапазон установки времени работы:
· семейная сауна 1-6 час.
· коммерческая сауна 1-12 час. - Диапазон установки времени задержки включения 0-12 час.
- Управление освещением и вентиляцией.
- Каждый пульт управления Harvia Xenio поставляется с блоком питания, который устанавливается в сухом месте вне парилки.
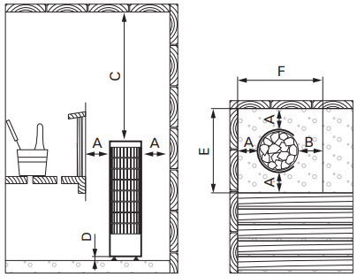
Безопасное расстояние A до стены, мм ... 40
Безопасное расстояние B до переднего нижнего полка, мм ... 30
Безопасное расстояние C до верхнего полка, мм ... 50
Безопасное расстояние до потолка, мм ... 1100
Безопасное расстояние до пола, мм ... 150
| Вид товара | |
| Тип изделия | электрокаменка |
| Каменка | |
| Вес закладываемых камней (кг) | 25 |
| Параметры | |
| Подключение (В) | 220/380 |
| Печь | |
| Мощность (кВт) | 6,0 |
| Вид печи | электрическая |
| Нагревательный элемент | ТЭН |
| Расположение | настенное |
| Кожух-конвектор | стальной закрытый |
| Характеристики | |
| Объём парилки (м³) | 5-8 |
| Парогенератор | без парогенератора |
| Пульт управления | выносной (в комплекте) |
| Тип каменки | открытая |
| Цвет | черный |
| Габариты / вес | |
| Вес (кг) | 15 |
| Высота (мм) | 580 |
| Глубина (мм) | 310 |
| Ширина (мм) | 410 |
| Производитель | |
| Изготовитель | Харвиа Оу. Финляндия, На ПЛ 12 (Теоллисуустие 1-7) 40951 Муураме |
| Производитель | Harvia |
| Страна-производитель | Финляндия |
| Гарантийный период | 12 мес |
